Vos futurs bureaux en zone commerciale d’Auchan Nord
Projet de construction de bureaux neufs dans une zone commerciale sur la commune de Sorgues.
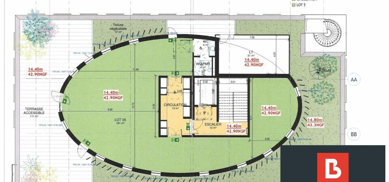
Lot d’exception en R+4 du bâtiment C d’environ 292m² comprenant environ 181 m² de bureaux ET une terrasse privative de 111 m² avec une vue imprenable!
Celles ci sont composées de sanitaires, 2WC dont 1 PMR, ainsi qu’un escalier et passage de circulation.
Ce projet se tourne vers une approche environnementale positive pour la planète avec la démarche BDM ‘Bâtiment Durable Méditerranée’ niveau Argent (https://www.envirobatdm.eu/)
Les bureaux seront livrés bruts, hors d’eau hors d’air.
Places de parking privatives inclues






