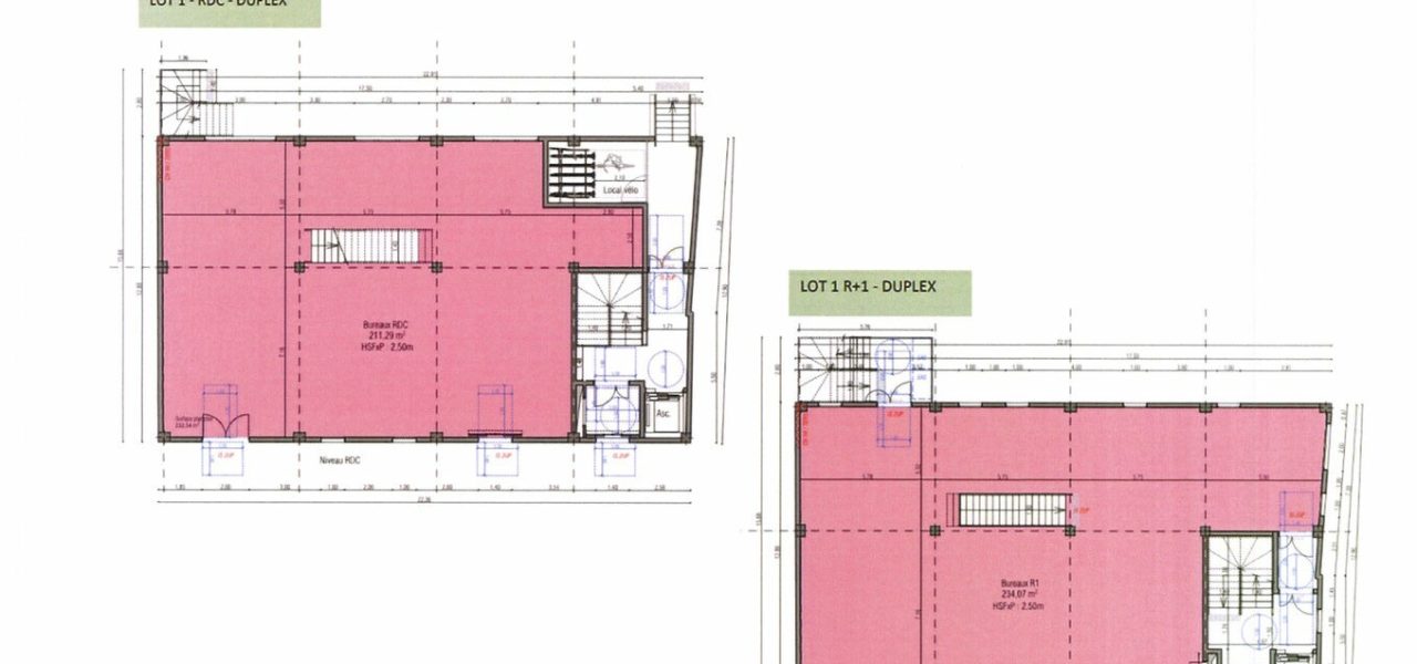
Nouveau sur Carpentras un immeuble de bureau ! A vendre un plateau de bureaux d’environ 445m². L’immeuble se trouve en zone d’activité de Carpentras sur un axe passant avec une très bonne visibilité.
Celui-ci se compose d’une surface d’environ 234m² en RDC et 211m² en R+1.Accès au local par escalier ou ascenseur.
Le lot sera livré avec les prestations suivantes :
- Dalle béton quartz
- Sanitaires
- VMC sanitaires
- Chauffage type VRF
- Faux plafond
- Eclairage dalles LED
- Escalier intérieur métallique pour accès étage intérieur (si option DUPLEX) ,
- Menuiseries intérieures ALU grande hauteur
- Equipements parties communes (colonnes montantes, interphonie, alarme incendie…)
- Isolation des murs périphériques – joints placo / hors peinture
- Electricité courant fort et faible en attente dans local technique
Le reste des travaux sont à la charge du preneur, avec possibilité de réaliser les travaux d’aménagement selon besoin sur devis.
Possibilité d’acheter d’autres lots présents dans le bâtiment.
La vente se fera en VEFA dès 50% de réservation de l’immeuble.


