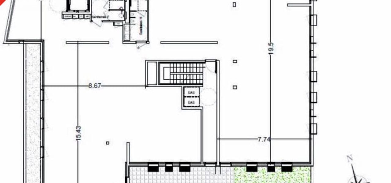
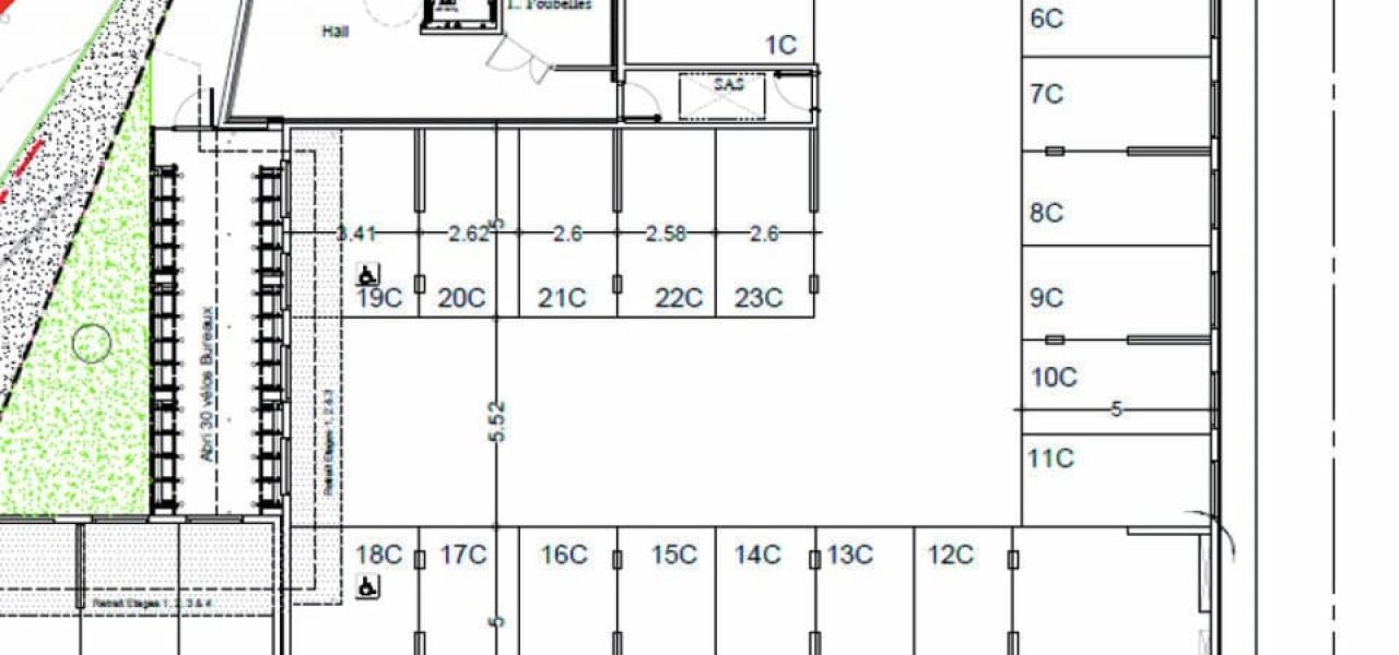
Avignon, à vendre, très bel emplacement pour ce programme tertiaire à venir à proximité de toutes commodités. Immeuble en R+3 proposant des places de parking en RDC dont 2 PMR et 2 bornes électriques.
Le plateau de bureaux en R+1 proposé, sera desservi via un hall d’accueil avec ascenseur et escaliers. Il offrira environ 428 m² de bureaux livrés finis non cloisonnés, et disposera d’une terrasse de 77 m².
Belle opportunité !





