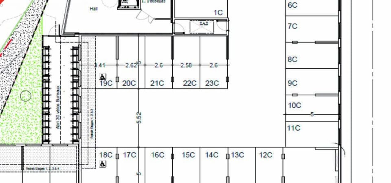
Nous vous proposons à la vente un bureaux en R+2 avec ascenseur PMR d’une superficie de 25 m², situé au sein d’un immeuble neuf à l’architecture moderne et élégante, implanté au cœur du parc d’activités d’Agroparc à Avignon.
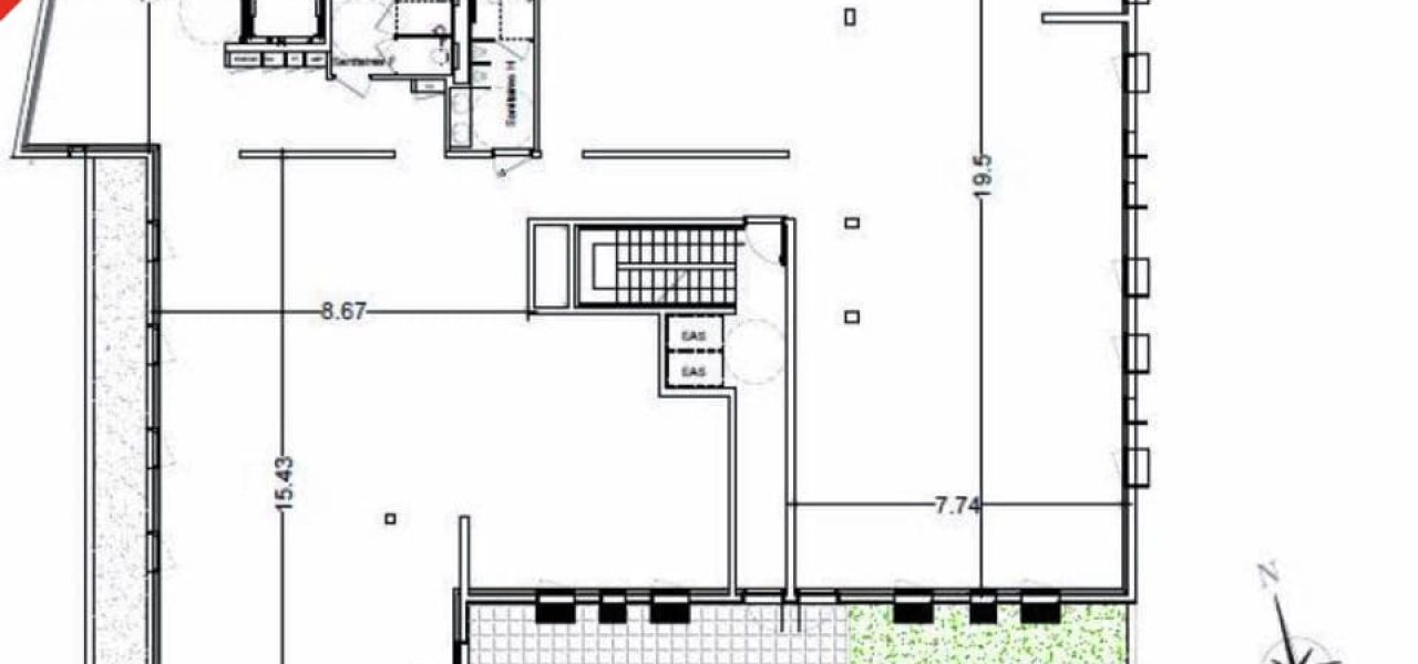
Les bureaux sont livrés brut, hors d’eau et hors d’air, offrant une liberté totale d’aménagement selon les besoins et l’identité de votre entreprise. Cette configuration modulable permet la création d’espaces sur mesure : bureaux individuels, open space, salle de réunion, accueil, ou encore espace détente.
L’immeuble bénéficie d’une visibilité premium sur un axe stratégique et d’une très belle configuration architecturale, garantissant une image valorisante pour votre société.
Il est également possible d’acquérir des places de stationnement en complément, assurant un confort d’accès pour les occupants et les visiteurs.
La TVA est récupérable sur ce bien.
Ce bien constitue une opportunité rare sur le secteur d’Agroparc, alliant modernité, emplacement stratégique et potentiel d’aménagement, idéal pour une entreprise souhaitant investir dans des bureaux neufs et personnalisables.






