À VENDRE – LOCAL COMMERCIAL NEUF – ZONE LA CRISTOLE / MISTRAL 7 – AVIGNON
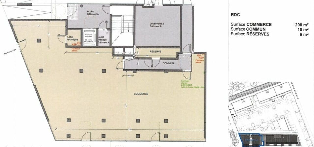
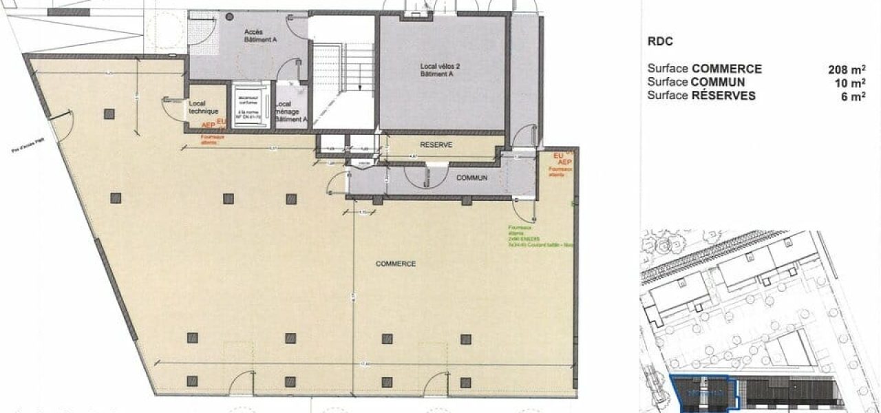
Surface : 224 m² divisibles – Livraison T4 2025
Situé au cÅ“ur de la dynamique zone commerciale LA CRISTOLE / MISTRAL 7 à Avignon, ce local commercial en pied d’immeuble bénéficie d’un emplacement stratégique et d’une excellente visibilité grâce à une large vitrine en façade.
Implanté en pied d’une résidence neuve de 120 logements en cours de livraison, le local bénéficie d’un bassin de vie immédiat.
À terme, ce sont près de 800 logements qui constitueront un environnement résidentiel dense, idéal pour implanter une activité de proximité ou de service.
Atouts supplémentaires :
-
Accès rapide aux grands axes et à la rocade sud
-
Quartier en pleine mutation et dynamisme commercial croissant
-
Environnement mixte : résidentiel, bureaux, commerces
Caractéristiques du bien :
-
Surface totale de 224 m², divisible en 2 lots selon votre projet
-
Local livré brut, hors d’eau / hors d’air, fluides en attente
-
Grande vitrine pour maximiser votre visibilité et valoriser votre activité
-
Environnement commercial dense et attractif, avec flux constant
-
Livraison prévue au 4ème trimestre 2025
PAS D ACTIVITE DE RESTAURATION POSSIBLE
Ce local est idéal pour accueillir une activité commerciale, de services ou professionnelle, au sein d’un quartier en plein essor, où la demande est croissante.
Vous êtes investisseur ou commerçant et souhaitez implanter votre activité dans l’une des zones les plus recherchées d’Avignon ?
Contactez dès maintenant l’agence BAUX LOCAUX pour plus d’informations ou organiser une visite!





